























Réfrigérateur rétro rouge 294 L style vintage efficacité totale No Frost Cecotec
Translation missing: fr.products.product.sku:01964
- Prix habituel
- 65551 TVA incluse
- Prix soldé
- Prix habituel
-
886,12€PVC - 26% - 655,51€ TVA incluse
-
546.26€ TVA non incluse

Impossible de charger la disponibilité du service de retrait
Présentation du produit












Détails du produit
Bolero CoolMarket Combi Origin 294+ Red E
Le réfrigérateur rétro Bolero CoolMarket Combi Origin 294+ Red E est la combinaison parfaite du style vintage et de la technologie avancée. Avec son design unique, ce réfrigérateur ne se contente pas d'embellir votre cuisine, il offre également une capacité de 294 litres pour stocker tous vos aliments.
- Total No Frost : Oubliez le givre. Vos aliments restent frais plus longtemps.
- Multi Cooling : Refroidissement indépendant pour le réfrigérateur et le congélateur. Pas d'odeurs désagréables.
- Ultra Fresh : Système de purification de l'air avec filtres à charbon. Conserve la fraîcheur de vos aliments.
- Congélation rapide : congélation ultra rapide de vos aliments et boissons.
- Multi Air Flow : Refroidissement uniforme dans chaque compartiment.
- Boîte convertible : Tiroir adaptable pour les fruits, les légumes, la viande et le poisson.
- Classe énergétique E : Grande capacité avec une consommation optimale.
- Mode Eco : Réduit la puissance et optimise la consommation d'énergie.
- Alarme de porte : évite les imprévus grâce à son système d'alerte.
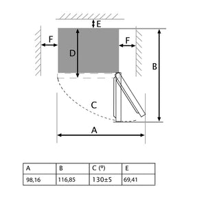
- Dimensions : 60,5 cm (L) x 63,1 cm (P) x 190,2 cm (H).
Classification du produit
Ce réfrigérateur est idéal pour ceux qui recherchent un appareil efficace au style rétro. Il est parfait pour les cuisines modernes qui veulent une touche vintage. Sa technologie avancée assure une conservation optimale des aliments, tandis que son efficacité énergétique permet de réduire la consommation d'électricité.
EAN : 8435484019644
No. de réf. : Bolero CoolMarket Combi Origin 294+ Red E
Bolero CoolMarket Combi Origin 294+ Red E
Le réfrigérateur rétro Bolero CoolMarket Combi Origin 294+ Red E est la combinaison parfaite du style vintage et de la technologie avancée. Avec son design unique, ce réfrigérateur ne se contente pas d'embellir votre cuisine, il offre également une capacité de 294 litres pour stocker tous vos aliments.
- Total No Frost : Oubliez le givre. Vos aliments restent frais plus longtemps.
- Multi Cooling : Refroidissement indépendant pour le réfrigérateur et le congélateur. Pas d'odeurs désagréables.
- Ultra Fresh : Système de purification de l'air avec filtres à charbon. Conserve la fraîcheur de vos aliments.
- Congélation rapide : congélation ultra rapide de vos aliments et boissons.
- Multi Air Flow : Refroidissement uniforme dans chaque compartiment.
- Boîte convertible : Tiroir adaptable pour les fruits, les légumes, la viande et le poisson.
- Classe énergétique E : Grande capacité avec une consommation optimale.
- Mode Eco : Réduit la puissance et optimise la consommation d'énergie.
- Alarme de porte : évite les imprévus grâce à son système d'alerte.
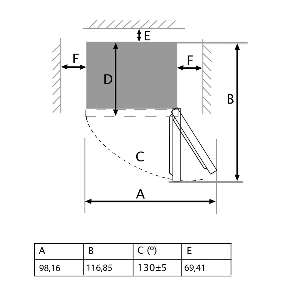
- Dimensions : 60,5 cm (L) x 63,1 cm (P) x 190,2 cm (H).
Classification du produit
Ce réfrigérateur est idéal pour ceux qui recherchent un appareil efficace au style rétro. Il est parfait pour les cuisines modernes qui veulent une touche vintage. Sa technologie avancée assure une conservation optimale des aliments, tandis que son efficacité énergétique permet de réduire la consommation d'électricité.
EAN : 8435484019644
No. de réf. : Bolero CoolMarket Combi Origin 294+ Red E
Produits recommandés
-
ROCA DIVERTA A327116000 Lavabo à poser de 55 cm en porcelaine blanche
Translation missing: fr.products.product.sku:A327116000
Distributeur :RocaROCA DIVERTA A327116000 Lavabo à poser de 55 cm en porcelaine blanche
Livraison gratuite
2 à 5 jours ouvrés
- Prix habituel
- 25419 TVA incluse
- Prix soldé
- Prix habituel
-
272,40€PVC - 6% - 254,19€ TVA incluse
-
211.83€ TVA non incluse
-
ROCA CALA A5A066EC00 Mitigeur de douche avec inverseur chromé
Translation missing: fr.products.product.sku:A5A066EC00
Distributeur :RocaROCA CALA A5A066EC00 Mitigeur de douche avec inverseur chromé
Livraison gratuite
2 à 5 jours ouvrés
- Prix habituel
- 13003 TVA incluse
- Prix soldé
- Prix habituel
-
193,20€PVC - 32% - 130,03€ TVA incluse
-
108.36€ TVA non incluse
-
ROCA ETERNAL A5A978BC00 Colonne d'hydromassage avec douchette rectangulaire et finition blanche
Translation missing: fr.products.product.sku:A5A978BC00
Distributeur :RocaROCA ETERNAL A5A978BC00 Colonne d'hydromassage avec douchette rectangulaire et finition blanche
Livraison gratuite
2 à 5 jours ouvrés
- Prix habituel
- 101977 TVA incluse
- Prix soldé
- Prix habituel
-
1.664,40€PVC - 38% - 1.019,77€ TVA incluse
-
849.81€ TVA non incluse
-
ROCA A5B0250C00 Support d'arrosage à compatibilité multiple pour installation murale de 40 cm
Translation missing: fr.products.product.sku:A5B0250C00
Distributeur :RocaROCA A5B0250C00 Support d'arrosage à compatibilité multiple pour installation murale de 40 cm
Livraison gratuite
2 à 5 jours ouvrés
- Prix habituel
- 9518 TVA incluse
- Prix soldé
- Prix habituel
-
92,08€PVC - 95,18€ TVA incluse
-
79.32€ TVA non incluse