























Réfrigérateur rétro noir 294 L sans givre Multi Cooling mode éco Cecotec
Translation missing: fr.products.product.sku:01966
- Prix habituel
- 65551 TVA incluse
- Prix soldé
- Prix habituel
-
886,12€PVC - 26% - 655,51€ TVA incluse
-
546.26€ TVA non incluse

Impossible de charger la disponibilité du service de retrait
Présentation du produit












Détails du produit
Bolero CoolMarket Combi Origin 294+ Black E
Le réfrigérateur rétro Bolero CoolMarket Combi Origin 294+ Black E est la combinaison parfaite d'un style vintage et d'une technologie avancée. Avec son design unique, ce réfrigérateur ne se contente pas d'embellir votre cuisine, il offre également un certain nombre de fonctions innovantes pour garder vos aliments frais et bien conservés.
- Design vintage : Ajoutez une touche rétro à votre cuisine grâce à son esthétique unique.
- Absence totale de givre : Oubliez le givrage et préservez les nutriments de vos aliments plus longtemps.
- Refroidissement multiple : refroidit le réfrigérateur et le congélateur indépendamment l'un de l'autre, en maintenant la température et l'humidité idéales.
- Ultra Fresh : Système de purification de l'air avec filtres à charbon pour éviter les mauvaises odeurs.
- Congélation rapide : congèle les aliments et les boissons très rapidement.
- Multi Air Flow : Distribution uniforme du froid dans chaque compartiment.
- Boîte convertible : Tiroir adaptable pour les fruits, les légumes, la viande et le poisson.
- Grande capacité : 294 litres pour ranger tout ce dont vous avez besoin.
- Classe énergétique E : consommation optimale et efficace.
- Mode Eco : Réduit la puissance et optimise la consommation d'énergie.
- Alarme de porte : vous avertit si le réfrigérateur est resté ouvert.
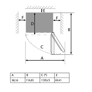
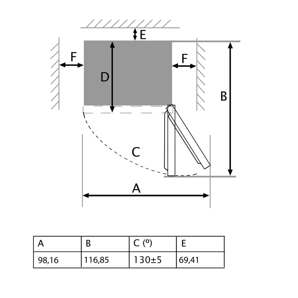
- Dimensions idéales : 60,5 cm de largeur, 63,1 cm de profondeur et 190,2 cm de hauteur.
Classification des produits
Le Bolero CoolMarket Combi Origin 294+ Black E est un réfrigérateur rétro qui se distingue par son design vintage et sa technologie avancée. Il est idéal pour ceux qui recherchent un appareil efficace et de grande capacité. Ses systèmes Total No Frost et Multi Cooling garantissent la fraîcheur des aliments, tandis que Ultra Fresh et Fast Freezing offrent un soin supérieur. Avec sa boîte convertible et son mode Eco, il s'adapte à vos besoins quotidiens, assurant une consommation d'énergie optimale.
EAN : 8435484019668
Ref. No. : Bolero CoolMarket Combi Origin 294+ Black E
Bolero CoolMarket Combi Origin 294+ Black E
Le réfrigérateur rétro Bolero CoolMarket Combi Origin 294+ Black E est la combinaison parfaite d'un style vintage et d'une technologie avancée. Avec son design unique, ce réfrigérateur ne se contente pas d'embellir votre cuisine, il offre également un certain nombre de fonctions innovantes pour garder vos aliments frais et bien conservés.
- Design vintage : Ajoutez une touche rétro à votre cuisine grâce à son esthétique unique.
- Absence totale de givre : Oubliez le givrage et préservez les nutriments de vos aliments plus longtemps.
- Refroidissement multiple : refroidit le réfrigérateur et le congélateur indépendamment l'un de l'autre, en maintenant la température et l'humidité idéales.
- Ultra Fresh : Système de purification de l'air avec filtres à charbon pour éviter les mauvaises odeurs.
- Congélation rapide : congèle les aliments et les boissons très rapidement.
- Multi Air Flow : Distribution uniforme du froid dans chaque compartiment.
- Boîte convertible : Tiroir adaptable pour les fruits, les légumes, la viande et le poisson.
- Grande capacité : 294 litres pour ranger tout ce dont vous avez besoin.
- Classe énergétique E : consommation optimale et efficace.
- Mode Eco : Réduit la puissance et optimise la consommation d'énergie.
- Alarme de porte : vous avertit si le réfrigérateur est resté ouvert.
- Dimensions idéales : 60,5 cm de largeur, 63,1 cm de profondeur et 190,2 cm de hauteur.
Classification des produits
Le Bolero CoolMarket Combi Origin 294+ Black E est un réfrigérateur rétro qui se distingue par son design vintage et sa technologie avancée. Il est idéal pour ceux qui recherchent un appareil efficace et de grande capacité. Ses systèmes Total No Frost et Multi Cooling garantissent la fraîcheur des aliments, tandis que Ultra Fresh et Fast Freezing offrent un soin supérieur. Avec sa boîte convertible et son mode Eco, il s'adapte à vos besoins quotidiens, assurant une consommation d'énergie optimale.
EAN : 8435484019668
Ref. No. : Bolero CoolMarket Combi Origin 294+ Black E
Produits recommandés
-
ROCA DIVERTA A327116000 Lavabo à poser de 55 cm en porcelaine blanche
Translation missing: fr.products.product.sku:A327116000
Distributeur :RocaROCA DIVERTA A327116000 Lavabo à poser de 55 cm en porcelaine blanche
Livraison gratuite
2 à 5 jours ouvrés
- Prix habituel
- 25419 TVA incluse
- Prix soldé
- Prix habituel
-
272,40€PVC - 6% - 254,19€ TVA incluse
-
211.83€ TVA non incluse
-
ROCA CALA A5A066EC00 Mitigeur de douche avec inverseur chromé
Translation missing: fr.products.product.sku:A5A066EC00
Distributeur :RocaROCA CALA A5A066EC00 Mitigeur de douche avec inverseur chromé
Livraison gratuite
2 à 5 jours ouvrés
- Prix habituel
- 13003 TVA incluse
- Prix soldé
- Prix habituel
-
193,20€PVC - 32% - 130,03€ TVA incluse
-
108.36€ TVA non incluse
-
ROCA ETERNAL A5A978BC00 Colonne d'hydromassage avec douchette rectangulaire et finition blanche
Translation missing: fr.products.product.sku:A5A978BC00
Distributeur :RocaROCA ETERNAL A5A978BC00 Colonne d'hydromassage avec douchette rectangulaire et finition blanche
Livraison gratuite
2 à 5 jours ouvrés
- Prix habituel
- 101977 TVA incluse
- Prix soldé
- Prix habituel
-
1.664,40€PVC - 38% - 1.019,77€ TVA incluse
-
849.81€ TVA non incluse
-
ROCA A5B0250C00 Support d'arrosage à compatibilité multiple pour installation murale de 40 cm
Translation missing: fr.products.product.sku:A5B0250C00
Distributeur :RocaROCA A5B0250C00 Support d'arrosage à compatibilité multiple pour installation murale de 40 cm
Livraison gratuite
2 à 5 jours ouvrés
- Prix habituel
- 9518 TVA incluse
- Prix soldé
- Prix habituel
-
92,08€PVC - 95,18€ TVA incluse
-
79.32€ TVA non incluse