























Réfrigérateur combiné inox 322L Efficacité énergétique No Frost Distributeur d eau Cecotec
Translation missing: fr.products.product.sku:02145
- Prix habituel
- 50778 TVA incluse
- Prix soldé
- Prix habituel
-
686,12€PVC - 25% - 507,78€ TVA incluse
-
423.15€ TVA non incluse

Impossible de charger la disponibilité du service de retrait
Présentation du produit












Détails du produit
Bolero CoolMarket Combi 322 WD Inox E Réfrigérateur-congélateur combiné
Le réfrigérateur-congélateur Bolero CoolMarket Combi 322 WD Inox E est la solution parfaite pour ceux qui recherchent efficacité et capacité. Avec un design élégant en acier inoxydable, cet appareil combine un réfrigérateur en haut et un compartiment congélateur en bas.
- Total No Frost: Oubliez la formation de glace. Vos aliments restent frais plus longtemps.
- Refroidissement rapide: Refroidissez rapidement vos aliments.
- Congélation rapide: Congélation ultra-rapide.
- Capacité de 322 L: suffisamment d'espace pour tous vos aliments.
- Classe énergétique D: économisez de l'énergie sans sacrifier les performances.
- Distributeur d'eau: de l'eau froide instantanée sans ouvrir le réfrigérateur.
- Multi Airflow: Distribution uniforme de l'air pour une conservation optimale.
- Mode vacances: Optimise la consommation lorsque vous n'êtes pas à la maison.
- Mode ECO: Economisez sur votre facture d'électricité.
- Humidity Box: Conservez vos fruits et légumes grâce à un taux d'humidité réglable.
- Affichage sur la porte: Contrôlez la température sans ouvrir la porte.
- Alarme de porte: vous avertit si la porte est restée ouverte.
- Porte réversible: adapte l'orientation de la porte à votre espace.
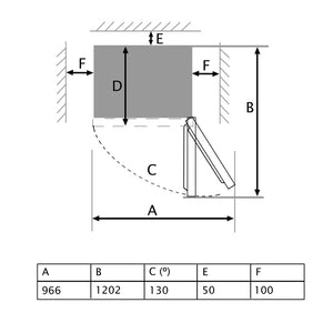
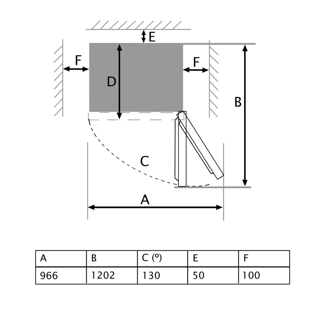
- Dimensions: 59,5 x 63,5 x 185,5 cm.
Classification du produit
Ce réfrigérateur est idéal pour les ménages qui recherchent l'efficacité énergétique et une grande capacité de stockage. Son design moderne et ses fonctionnalités avancées en font un excellent choix pour toute cuisine. Grâce à des caractéristiques telles que le compresseur Inverter Plus et le système Multi Air Flow, il garantit des performances optimales et une conservation prolongée des aliments.
EAN : 8435484021456
N° de réf. : 2145
Bolero CoolMarket Combi 322 WD Inox E Réfrigérateur-congélateur combiné
Le réfrigérateur-congélateur Bolero CoolMarket Combi 322 WD Inox E est la solution parfaite pour ceux qui recherchent efficacité et capacité. Avec un design élégant en acier inoxydable, cet appareil combine un réfrigérateur en haut et un compartiment congélateur en bas.
- Total No Frost: Oubliez la formation de glace. Vos aliments restent frais plus longtemps.
- Refroidissement rapide: Refroidissez rapidement vos aliments.
- Congélation rapide: Congélation ultra-rapide.
- Capacité de 322 L: suffisamment d'espace pour tous vos aliments.
- Classe énergétique D: économisez de l'énergie sans sacrifier les performances.
- Distributeur d'eau: de l'eau froide instantanée sans ouvrir le réfrigérateur.
- Multi Airflow: Distribution uniforme de l'air pour une conservation optimale.
- Mode vacances: Optimise la consommation lorsque vous n'êtes pas à la maison.
- Mode ECO: Economisez sur votre facture d'électricité.
- Humidity Box: Conservez vos fruits et légumes grâce à un taux d'humidité réglable.
- Affichage sur la porte: Contrôlez la température sans ouvrir la porte.
- Alarme de porte: vous avertit si la porte est restée ouverte.
- Porte réversible: adapte l'orientation de la porte à votre espace.
- Dimensions: 59,5 x 63,5 x 185,5 cm.
Classification du produit
Ce réfrigérateur est idéal pour les ménages qui recherchent l'efficacité énergétique et une grande capacité de stockage. Son design moderne et ses fonctionnalités avancées en font un excellent choix pour toute cuisine. Grâce à des caractéristiques telles que le compresseur Inverter Plus et le système Multi Air Flow, il garantit des performances optimales et une conservation prolongée des aliments.
EAN : 8435484021456
N° de réf. : 2145
Produits recommandés
-
ROCA DIVERTA A327116000 Lavabo à poser de 55 cm en porcelaine blanche
Translation missing: fr.products.product.sku:A327116000
Distributeur :RocaROCA DIVERTA A327116000 Lavabo à poser de 55 cm en porcelaine blanche
Livraison gratuite
2 à 5 jours ouvrés
- Prix habituel
- 25419 TVA incluse
- Prix soldé
- Prix habituel
-
272,40€PVC - 6% - 254,19€ TVA incluse
-
211.83€ TVA non incluse
-
ROCA CALA A5A066EC00 Mitigeur de douche avec inverseur chromé
Translation missing: fr.products.product.sku:A5A066EC00
Distributeur :RocaROCA CALA A5A066EC00 Mitigeur de douche avec inverseur chromé
Livraison gratuite
2 à 5 jours ouvrés
- Prix habituel
- 13003 TVA incluse
- Prix soldé
- Prix habituel
-
193,20€PVC - 32% - 130,03€ TVA incluse
-
108.36€ TVA non incluse
-
ROCA ETERNAL A5A978BC00 Colonne d'hydromassage avec douchette rectangulaire et finition blanche
Translation missing: fr.products.product.sku:A5A978BC00
Distributeur :RocaROCA ETERNAL A5A978BC00 Colonne d'hydromassage avec douchette rectangulaire et finition blanche
Livraison gratuite
2 à 5 jours ouvrés
- Prix habituel
- 101977 TVA incluse
- Prix soldé
- Prix habituel
-
1.664,40€PVC - 38% - 1.019,77€ TVA incluse
-
849.81€ TVA non incluse
-
ROCA A5B0250C00 Support d'arrosage à compatibilité multiple pour installation murale de 40 cm
Translation missing: fr.products.product.sku:A5B0250C00
Distributeur :RocaROCA A5B0250C00 Support d'arrosage à compatibilité multiple pour installation murale de 40 cm
Livraison gratuite
2 à 5 jours ouvrés
- Prix habituel
- 9518 TVA incluse
- Prix soldé
- Prix habituel
-
92,08€PVC - 95,18€ TVA incluse
-
79.32€ TVA non incluse