























Réfrigérateur combiné 356 L blanc Cecotec; No Frost refroidissement rapide; Classe E 200 cm de hauteur
Translation missing: fr.products.product.sku:02149
- Prix habituel
- 59088 TVA incluse
- Prix soldé
- Prix habituel
-
798,62€PVC - 26% - 590,88€ TVA incluse
-
492.4€ TVA non incluse

Impossible de charger la disponibilité du service de retrait
Présentation du produit












Détails du produit
Bolero CoolMarket Combi 356 White Glass E
Le réfrigérateur-congélateur Bolero CoolMarket Combi 356 White Glass E est la solution parfaite pour ceux qui recherchent l'efficacité et le design dans un seul appareil. Avec une hauteur de 200 cm et une largeur de 59,5 cm, il s'adapte à tous les espaces.
- Absence totale de givre: Oubliez la formation de glace. Vos aliments restent frais plus longtemps.
- Refroidissement rapide: Refroidissez rapidement vos aliments.
- Congélation rapide: Congélation ultra-rapide.
- Capacité de 356 litres: suffisamment d'espace pour tous vos aliments.
- Classe énergétique E: économisez de l'énergie sans sacrifier les performances.
- Multi Airflow: Distribution uniforme de l'air pour une conservation optimale.
- Mode vacances: Optimise la consommation lorsque vous n'êtes pas chez vous.
- Humidity Box: Préserve les fruits et légumes grâce à un taux d'humidité réglable.
- Affichage de la porte: Contrôle la température sans ouvrir la porte.
- Porte réversible: Adaptez l'ouverture à votre espace.
- Alarme de porte: vous avertit si la porte reste ouverte.
- LED intérieure: éclairage efficace pour une meilleure visibilité.
- Porte-bouteilles horizontal supplémentaire: permet de ranger davantage de bouteilles.
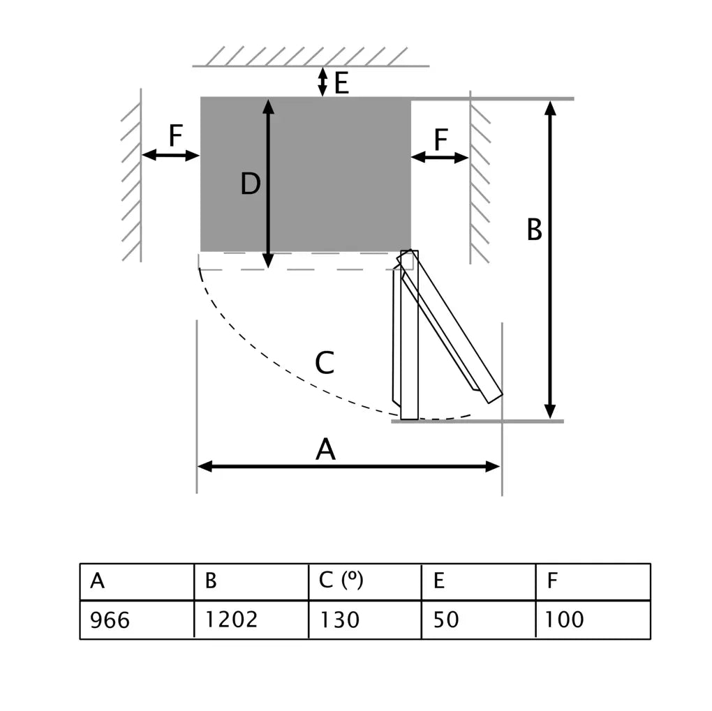
- Dimensions: 59,5 x 63,5 x 200 cm.
Note sur le produit
Ce réfrigérateur est idéal pour les ménages qui recherchent l'efficacité énergétique et une technologie avancée. Son design épuré en verre blanc lui permet de s'intégrer parfaitement dans une cuisine moderne. Avec des fonctions telles que MultiAirFlow et le mode vacances, c'est un choix intelligent pour ceux qui veulent garder leurs aliments frais et bien conservés.
EAN : 8435484021494
N° de réf. : 2149
Bolero CoolMarket Combi 356 White Glass E
Le réfrigérateur-congélateur Bolero CoolMarket Combi 356 White Glass E est la solution parfaite pour ceux qui recherchent l'efficacité et le design dans un seul appareil. Avec une hauteur de 200 cm et une largeur de 59,5 cm, il s'adapte à tous les espaces.
- Absence totale de givre: Oubliez la formation de glace. Vos aliments restent frais plus longtemps.
- Refroidissement rapide: Refroidissez rapidement vos aliments.
- Congélation rapide: Congélation ultra-rapide.
- Capacité de 356 litres: suffisamment d'espace pour tous vos aliments.
- Classe énergétique E: économisez de l'énergie sans sacrifier les performances.
- Multi Airflow: Distribution uniforme de l'air pour une conservation optimale.
- Mode vacances: Optimise la consommation lorsque vous n'êtes pas chez vous.
- Humidity Box: Préserve les fruits et légumes grâce à un taux d'humidité réglable.
- Affichage de la porte: Contrôle la température sans ouvrir la porte.
- Porte réversible: Adaptez l'ouverture à votre espace.
- Alarme de porte: vous avertit si la porte reste ouverte.
- LED intérieure: éclairage efficace pour une meilleure visibilité.
- Porte-bouteilles horizontal supplémentaire: permet de ranger davantage de bouteilles.
- Dimensions: 59,5 x 63,5 x 200 cm.
Note sur le produit
Ce réfrigérateur est idéal pour les ménages qui recherchent l'efficacité énergétique et une technologie avancée. Son design épuré en verre blanc lui permet de s'intégrer parfaitement dans une cuisine moderne. Avec des fonctions telles que MultiAirFlow et le mode vacances, c'est un choix intelligent pour ceux qui veulent garder leurs aliments frais et bien conservés.
EAN : 8435484021494
N° de réf. : 2149
Produits recommandés
-
ROCA DIVERTA A327116000 Lavabo à poser de 55 cm en porcelaine blanche
Translation missing: fr.products.product.sku:A327116000
Distributeur :RocaROCA DIVERTA A327116000 Lavabo à poser de 55 cm en porcelaine blanche
Livraison gratuite
2 à 5 jours ouvrés
- Prix habituel
- 25419 TVA incluse
- Prix soldé
- Prix habituel
-
272,40€PVC - 6% - 254,19€ TVA incluse
-
211.83€ TVA non incluse
-
ROCA CALA A5A066EC00 Mitigeur de douche avec inverseur chromé
Translation missing: fr.products.product.sku:A5A066EC00
Distributeur :RocaROCA CALA A5A066EC00 Mitigeur de douche avec inverseur chromé
Livraison gratuite
2 à 5 jours ouvrés
- Prix habituel
- 13003 TVA incluse
- Prix soldé
- Prix habituel
-
193,20€PVC - 32% - 130,03€ TVA incluse
-
108.36€ TVA non incluse
-
ROCA ETERNAL A5A978BC00 Colonne d'hydromassage avec douchette rectangulaire et finition blanche
Translation missing: fr.products.product.sku:A5A978BC00
Distributeur :RocaROCA ETERNAL A5A978BC00 Colonne d'hydromassage avec douchette rectangulaire et finition blanche
Livraison gratuite
2 à 5 jours ouvrés
- Prix habituel
- 101977 TVA incluse
- Prix soldé
- Prix habituel
-
1.664,40€PVC - 38% - 1.019,77€ TVA incluse
-
849.81€ TVA non incluse
-
ROCA A5B0250C00 Support d'arrosage à compatibilité multiple pour installation murale de 40 cm
Translation missing: fr.products.product.sku:A5B0250C00
Distributeur :RocaROCA A5B0250C00 Support d'arrosage à compatibilité multiple pour installation murale de 40 cm
Livraison gratuite
2 à 5 jours ouvrés
- Prix habituel
- 9518 TVA incluse
- Prix soldé
- Prix habituel
-
92,08€PVC - 95,18€ TVA incluse
-
79.32€ TVA non incluse